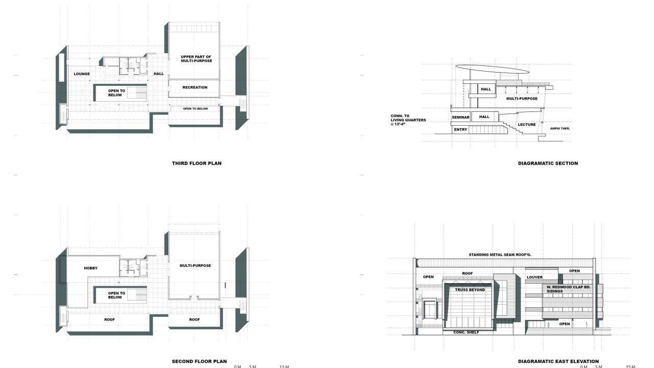
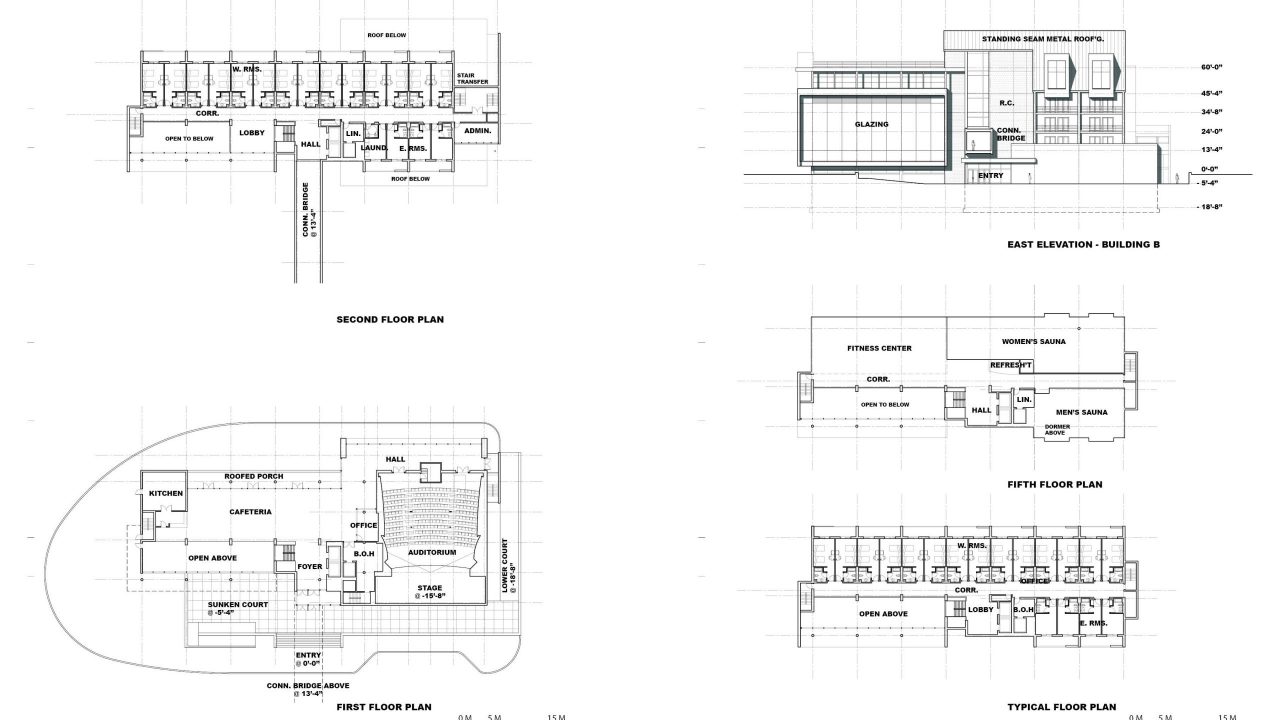
We were contracted by a Korean architecture and engineering firm to develop the concept design for a Women’s Educational Institute to be built at a coastal location.



We were contracted by a Korean architecture and engineering firm to develop the concept design for a Women’s Educational Institute to be built at a coastal location.