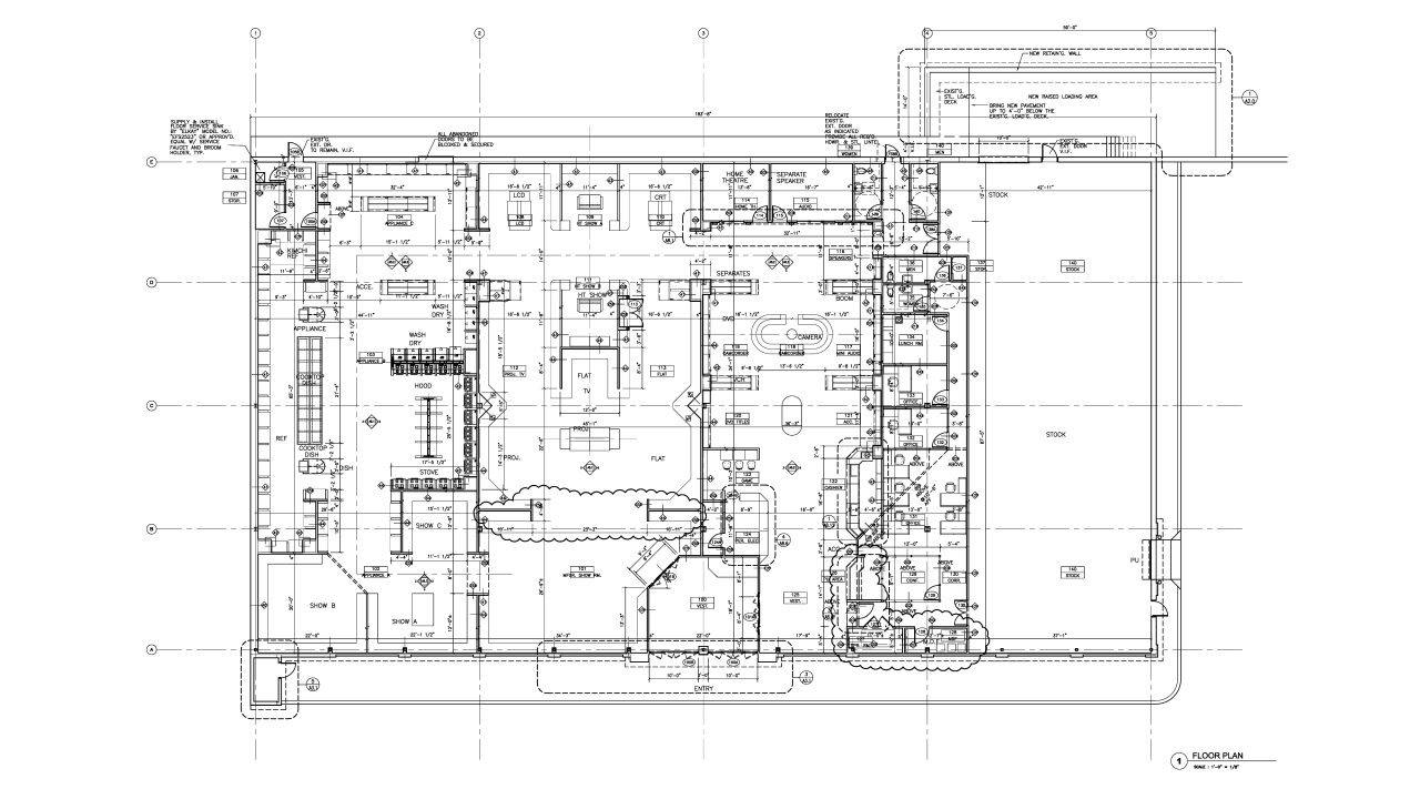
JWJA transformed a former H Mart location in Fairfield, NJ into a premium mega appliance store, showcasing brands such as Viking, Subzero, and Wolf. Additionally, the store includes a Samsung America exhibition space, showcasing the latest in technology. JWJA provided full architectural services, including the design of the store’s interior and exterior, as well as a corporate identity package.











