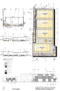
Our client entrusted us with the task of improving and developing a century-old warehouse building, which was one of several properties under their care. In order to accomplish this, we presented a range of design alternatives to determine the most efficient development model for this large, albeit aging, structure.

Throughout the project, we collaborated closely with a reputable structural firm to ensure that all design alternatives adhered to the necessary requirements. These alternatives were then prepared for presentation to the client’s investors. The development process posed numerous challenges, such as preserving and enhancing the existing structural integrity, incorporating sensible additions to the building, and devising construction details that minimized unnecessary costs and overheads.
To address these challenges, we engaged in regular consultations with the contractor appointed by the client. Through the use of sketches, we effectively communicated our plans for the building’s layout and foundation details, all while remaining mindful of the project’s budgetary constraints.
By employing this collaborative approach and maintaining open lines of communication with all stakeholders involved, we successfully navigated the complexities of the project. Our diligent efforts ensured that the development not only met the client’s expectations but also satisfied the financial limitations set forth. This comprehensive approach further solidified our reputation as a trusted partner for our client’s property improvement and development endeavors.
Go back to Services for Property Management Firms




